
NAVE EN ALQUILER EN EL POLIGONO DE SON CASTELLÓ
15.000€/mes
(Alquiler)Información
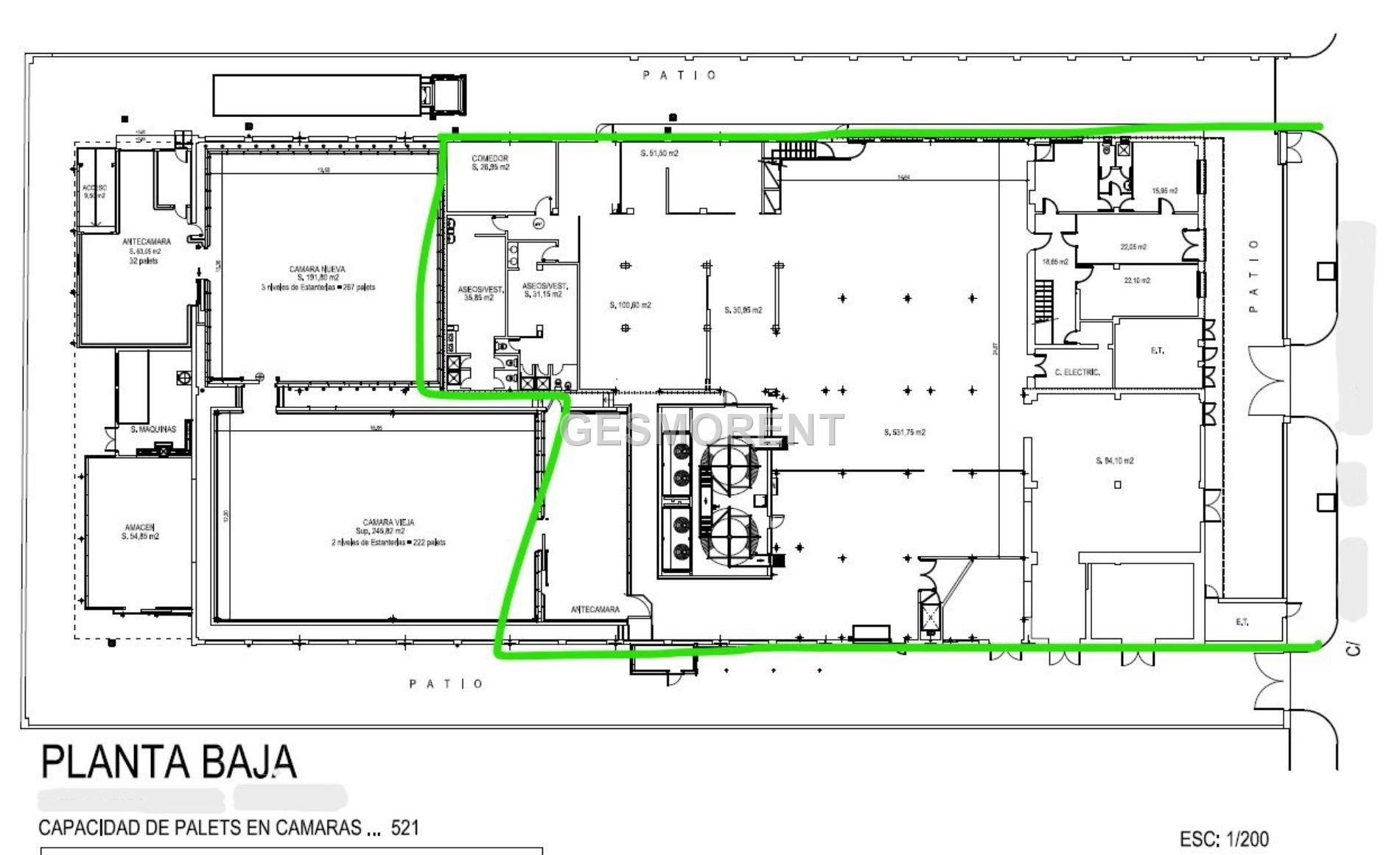
UBICACIÓN: Nave situada en el Polígono Industrial de Son Castelló, una de las áreas empresariales más consolidadas de Palma. La zona cuenta con una amplia implantación de empresas industriales, logísticas y de servicios, lo que la convierte en un entorno estratégico para el desarrollo de cualquier actividad. Dispone de excelentes accesos viarios, con conexión directa a las principales líneas de transporte público y las utovías Ma-20 y Ma-13. DESCRIPCIÓN: Nave industrial con una superficie total distribuida en planta baja de 750 m² y 1ª planta de 900 m², ambos niveles comunicados mediante montacargas, lo que facilita la operativa interna y el movimiento de mercancías. La planta baja se organiza en zona de trabajo común, varias estancias polivalentes, office–comedor, dos aseos con vestuarios y un aseo adicional, mientras que el altillo se destina a área administrativa, distribuida en varios despachos, zona de trabajo común, sala de juntas y archivo, permitiendo una clara separación entre las áreas operativas y de gestión. Dispone de patio de uso privativo de 460 m². En cuanto a instalaciones, el inmueble cuenta con una instalación fotovoltaica de 557 paneles solares, con un rendimiento de 309 kW, que aporta una alta eficiencia energética, además de filtro de armónicos instalado para garantizar la calidad y estabilidad de la instalación eléctrica, y una instalación de climatización mediante 3 máquinas de aire acondicionado, asegurando óptimas condiciones de confort para el desarrollo de la actividad. * Para más información contacte con nuestros asesores. REF. N-855
Características
- Patio
- Oficina
Ubicación
Nota: La ubicación mostrada en el mapa es aproximada por motivos de privacidad