
VentaN-622
NAVE EN VENTA EN HOSPITALET DE LLOBREGAT
460.000€
(Venta)834m²Superficie
Información
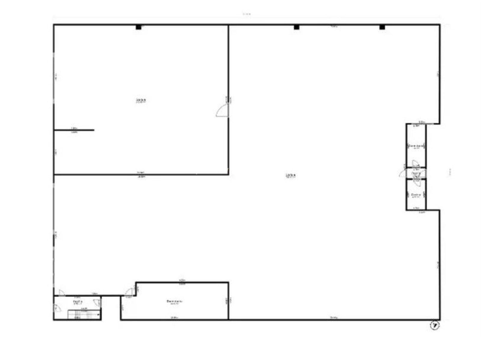
UBICACIÓN: Nave situada en Bellvitge, Hospitalet de Llobregat, en Barcelona. Rodeada de comercios. Muy bien comunicada con las vías de transporte público y con la autovía C-31. DESCRIPCIÓN: Nave industrial de 834m2 aprox con un ancho de 23,83m aprox y un fondo de 33m aprox. Se divide en planta baja con zona de trabajo y un altillo de 62m2 aprox con varias estancias y aseos. Cuenta con dos puertas de acceso, para vehículos y peatones. *Inmueble en estado de OCUPACIÓN y procedente de cartera bancaria, sujeto a cambios. Para más información contacte con nuestros asesores. N-622
Características
- Oficina
Ubicación
Nota: La ubicación mostrada en el mapa es aproximada por motivos de privacidad