
AlquilerN-686
NAVE INDUSTRIAL EN ALQUILER EN ESPARRAGUERA, BARCELONA
6.000€/mes
(Alquiler)1025m²Superficie
Información
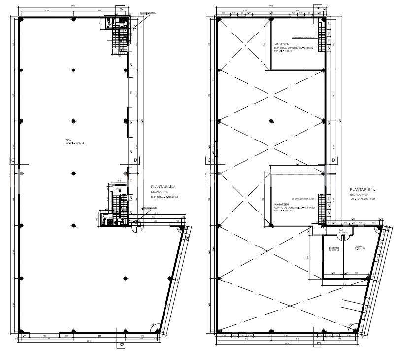
UBICACIÓN: Nave industrial situada en el Polígono de Esparraguera, en Can Comelles, Barcelona. Muy bien comunicada con la autovía A-2. DESCRIPCIÓN: Nave de tipo C de 1.025’77m2 aprox más altillo de 229,11m2 aprox. Dispone de almacén, oficinas y aseos. La nave se encuentra en una parcela de 1.812’61m2 aprox. Para más información contacte con nuestros asesores. N-686
Ubicación
Nota: La ubicación mostrada en el mapa es aproximada por motivos de privacidad