
VentaN-674
NAVE EN VENTA EN POLÍGONO SON MORRO
3.800.000€
(Venta)1375m²Superficie
Información
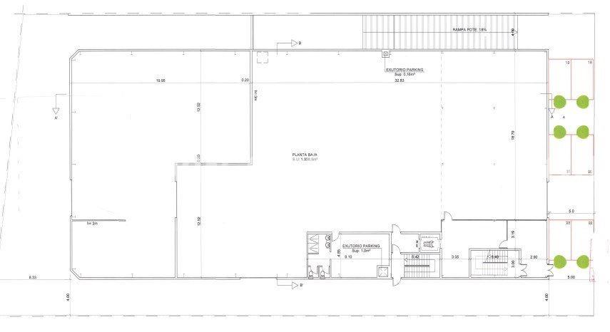
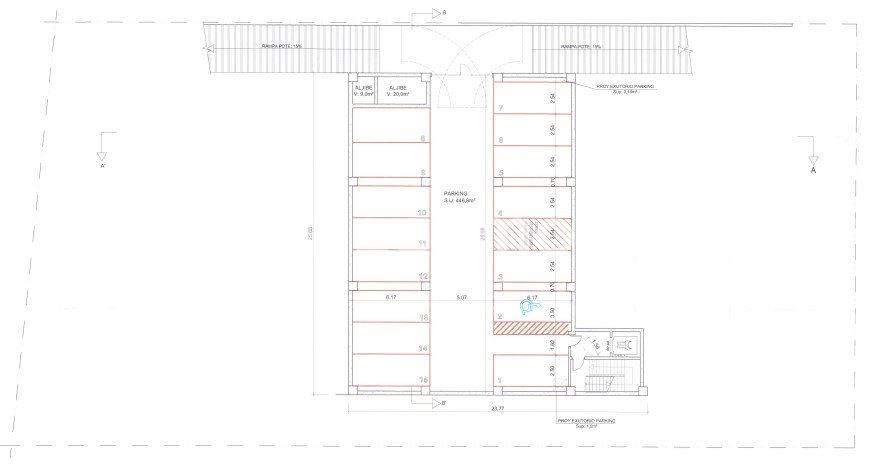
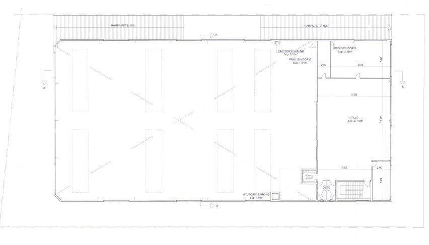
UBICACIÓN: Nave industrial situada en el Polígono Son Morro. Muy bien comunicada con las autovías Ma-20 y Ma-19. DESCRIPCIÓN: Nave industrial de 1375m2 aprox con un altillo de 314m2 aprox destinado a oficinas completamente acondicionadas y un sótano de 492m2 aprox destinado a parking y almacén. El acceso a las 3 plantas es mediante escalera y ascensor peatonal. La nave cuenta con un aljibe para el sistema contraincendios en el sótano y con todas las instalaciones necesarias. Además, dispone de 3 vados. Para más información contacte con nuestros asesores. N-674
Características
- Sótano
- Vado
Ubicación
Nota: La ubicación mostrada en el mapa es aproximada por motivos de privacidad