
NAVES EN CONSTRUCCIÓN CON FINALIZACIÓN EN 2026 EN ALQUILER EN POLÍGONO SON ROSSINYOL
45.600€/mes
(Alquiler)Información
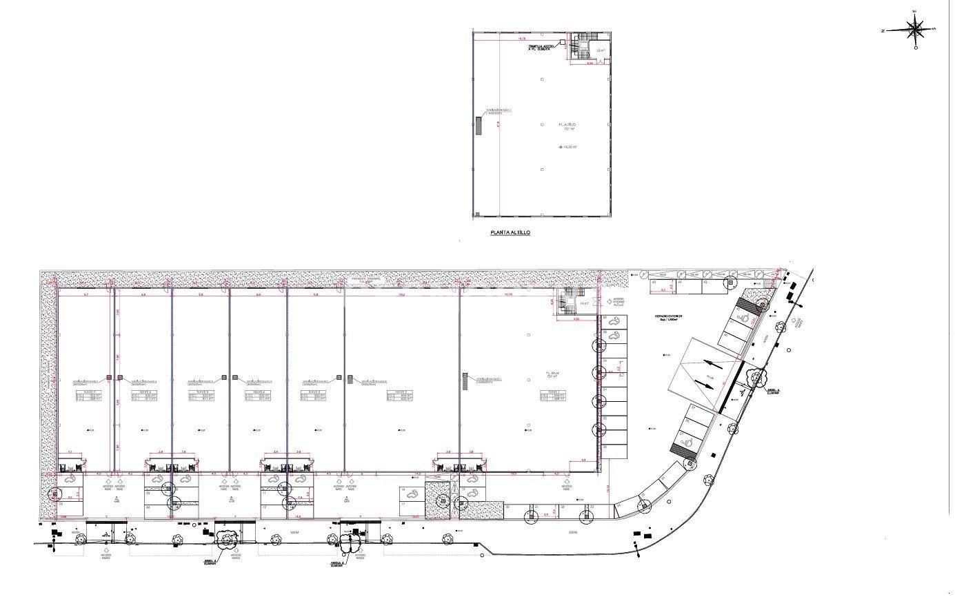
UBICACIÓN: Conjunto de naves situado en el Polígono de Son Rossinyol. Muy bien comunicado con las líneas de transporte público y con las autovías Ma-20 y Ma-13. DESCRIPCIÓN: Conjunto de 7 naves adosadas en construcción que hacen un total de 3.800m2 aprox, una de ellas con altillo destinado a oficinas con acceso independiente. Cuentan con patio de 1.850m2 aprox donde se encuentran 43 plazas de parking, teniendo algunas de ellas carga para coches eléctricos. Cada nave cuenta con acceso independiente para vehículos y peatones. Hay posibilidad de unir las naves entre si. *Fecha prevista de finalización a finales de 2026. *PRECIO A CONSULTAR. Para más información contacte con nuestros asesores. N-717
Características
- Patio
- Parking
Ubicación
Nota: La ubicación mostrada en el mapa es aproximada por motivos de privacidad