
VentaL-992
LOCAL EN VENTA EN MONTUÏRI
160.000€
(Venta)96m²Superficie
Información
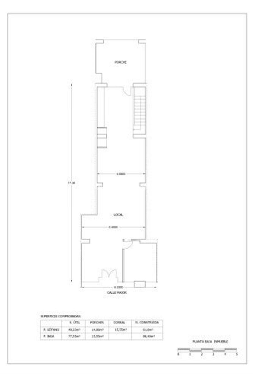
UBICACIÓN: Local situado en el centro de Montuïri. Zona rodeada de viviendas, parques y pequeños comercios. Muy bien comunicado con la carretera Ma-3220. DESCRIPCIÓN: Local comercial de 206m2 aprox distribuidos en planta calle con 96m2 aprox más sótano de 60m2 aprox. El local dispone de un patio trasero de 32m2 aprox de uso privativo. *Inmueble procedente de cartera bancaria, sujeto a cambios. Para más información contacte con nuestros asesores. L-992
Características
- Patio
- Sótano
- Oficina
Certificado energético:
Ubicación
Nota: La ubicación mostrada en el mapa es aproximada por motivos de privacidad