
VentaL-555
LOCAL EN VENTA EN POLÍGONO DE MANACOR
1.785.000€
(Venta)582m²Superficie
Información
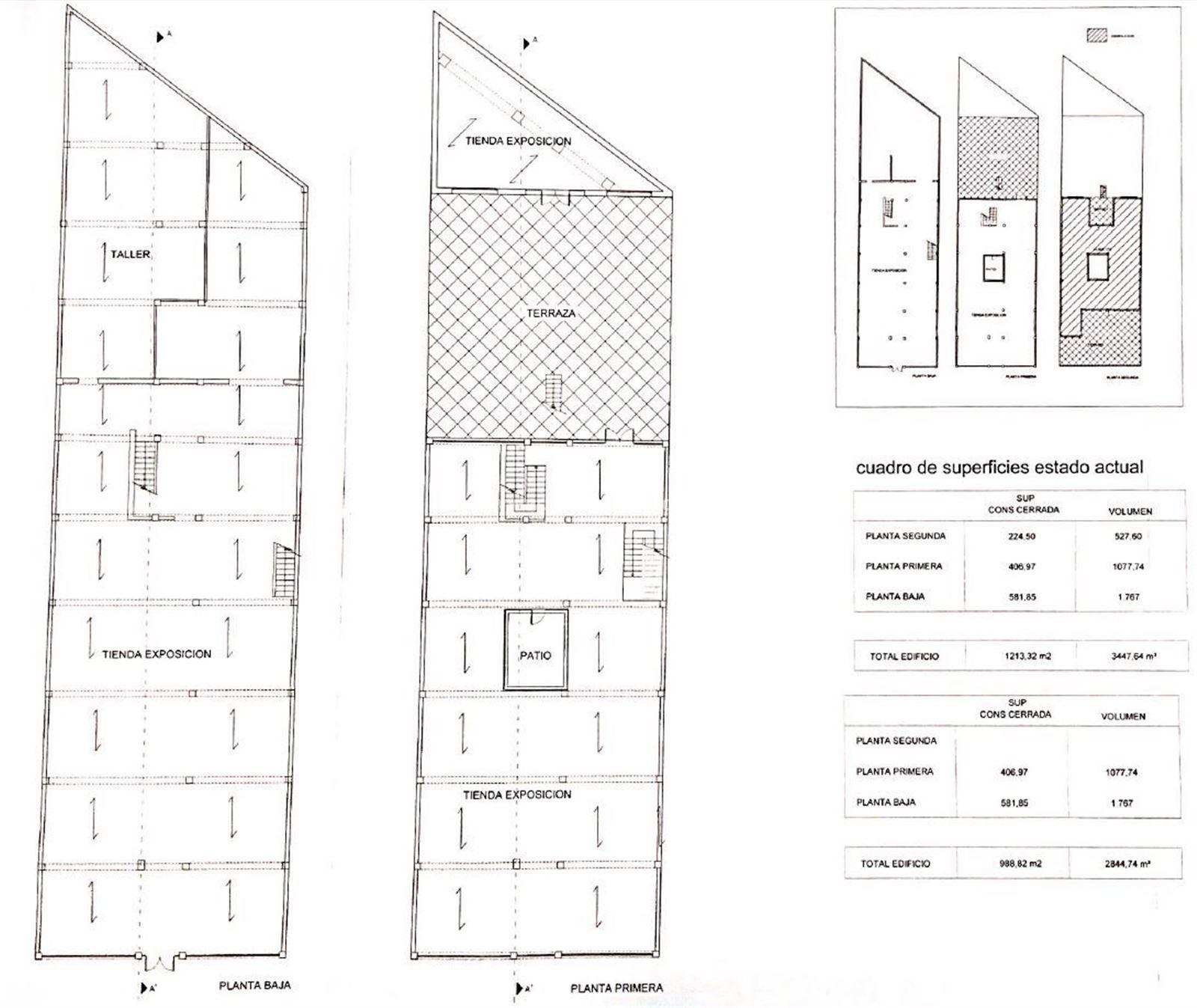
UBICACIÓN: Ubicado en la primera línea de carretera Palma- Manacor Ma-15, al lado de la autovía, muy bien comunicado, en la zona más comercial de Manacor. DESCRIPCIÓN: Local comercial en venta con Inquilino de 998m2 aprox. dividido en planta baja de 581m2 aprox., primera planta de 406m2 aprox. y segunda planta de 224m2 aprox. En primera línea de zona comercial y de grandes superficies como Lidl, Müller, Hipercentro etc. Cuenta con una gran fachada acristalada con mucha visibilidad. Fácil aparcamiento delantero. Ideal para Inversionista. Para más información póngase en contacto con nuestros asesores. L-555
Características
- Terraza
- Ático
Certificado energético:
Ubicación
Nota: La ubicación mostrada en el mapa es aproximada por motivos de privacidad