
EDIFICIO EN VENTA EN PLENO CENTRO DE PALMA
2.000.000€
(Venta)Información
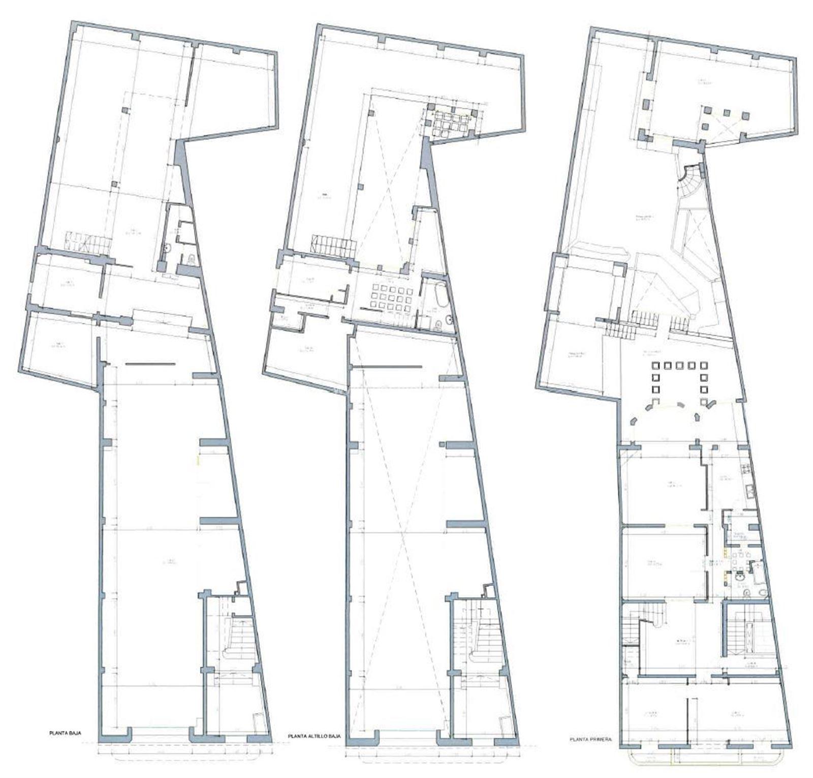
UBICACIÓN: Vivienda situada en el centro de Palma, cercana a Hacienda y a la plaza España. DESCRIPCIÓN: Edificio de 890m2 construidos, divididos en 2 plantas de vivienda de 540m2 aprox.+ 1 gran terraza exterior de unos 160m2. En la planta calle hay local comercial y parking. En la 1ª planta hay un gran hall con escalera y techos altos al más puro estilo mallorquín, salón con chimenea, 1 habitación doble con baño en suite, comedor, sala, aseo y una gran cocina. En la 2ª planta hay otra sala con chimenea y 4 habitaciones dobles con baños en suite, además cuenta con una gran azotea con posibilidad de poder construir una 3ª planta. Vivienda que necesita reforma y actualización situada en el centro de la ciudad y muy bien comunicada. Para más información póngase en contacto con nuestros asesores. S-27
Ubicación
Nota: La ubicación mostrada en el mapa es aproximada por motivos de privacidad